Gümüşhane Üniversitesi Ana Sayfa
GÜN TV
English
Harita Mühendisliği Bölümü
Toggle navigation
Genel Bilgiler
Bölüm Tanıtımı
Misyon
Vizyon
Komisyonlar
Personel
Yönetim
Akademik
İdari
Anabilim Dalları
Fotogrametri ABD
Jeodezi ABD
Kamu Ölçmeleri ABD
Kartoğrafya ABD
Ölçme Tekniği ABD
Uzaktan Algılama ABD
Araştırma
Laboratuvarlar
Lisans
Dersler
Ders İçerikleri
Ders Programı
Sınav Programı
Staj
Danışman Listeleri
Sene Sonu Uygulama Dersleri
Topografik Harita Yapımı
Fotogrametri ve Uzaktan Algılama Amaçlı Alım Teknikleri
CBS Uygulamaları ve Kartoğrafik Görselleme
Lisans Üstü
Yüksek Lisans
Dersler
Ders İçerikleri
Ders Programı
Sınav Programı
Kalite Süreci - Sürekli İyileştirme
Kalite Süreci - Sürekli İyileştirme
Program Değerlendirme
Öz Değerlendirme Raporu
Akran Değerlendirme Raporu
İletişim
Anasayfa
Lisans
Sene Sonu Uygulama Dersleri
Topografik Harita Yapımı
Topografik Harita Yapımı
Sene Sonu Uygulama Dersleri
Topografik Harita Yapımı
Fotogrametri ve Uzaktan Algılama Amaçlı Alım Teknikleri
CBS Uygulamaları ve Kartoğrafik Görselleme
Topografik Harita Yapımı
ITRF kooridnat sisteminde C3 koordinat ve röper krokisi
BÖLGELEME_KROKİSİ
TOPOGRAFİK HARİTA YAPIM FÖYÜ
röper (4)
r3
röper (2)
röper (3)
röper (1)
r4
r2
r1
Poligon Kanavası
ITRF koordinat sisteminde P1-P2 koordinat ve röperleri
nirengi1
Paratonerlerin dağılımını gösteren harita
nirengi 2
ED-50 koordinat sisteminde N3-N4 koordinat ve röperleri
ITRF kooridnat sisteminde C1-C2 koordinat ve röper krokileri
ITRF koordinat sisteminde P109-P110 koordinat ve röperleri
ITRF koordinat sisteminde P111 koordinat ve röperleri
ITRF koordinat sisteminde P107-P108 koordinat ve röperleri
ITRF koordinat sisteminde P105-P106 koordinat ve röperleri
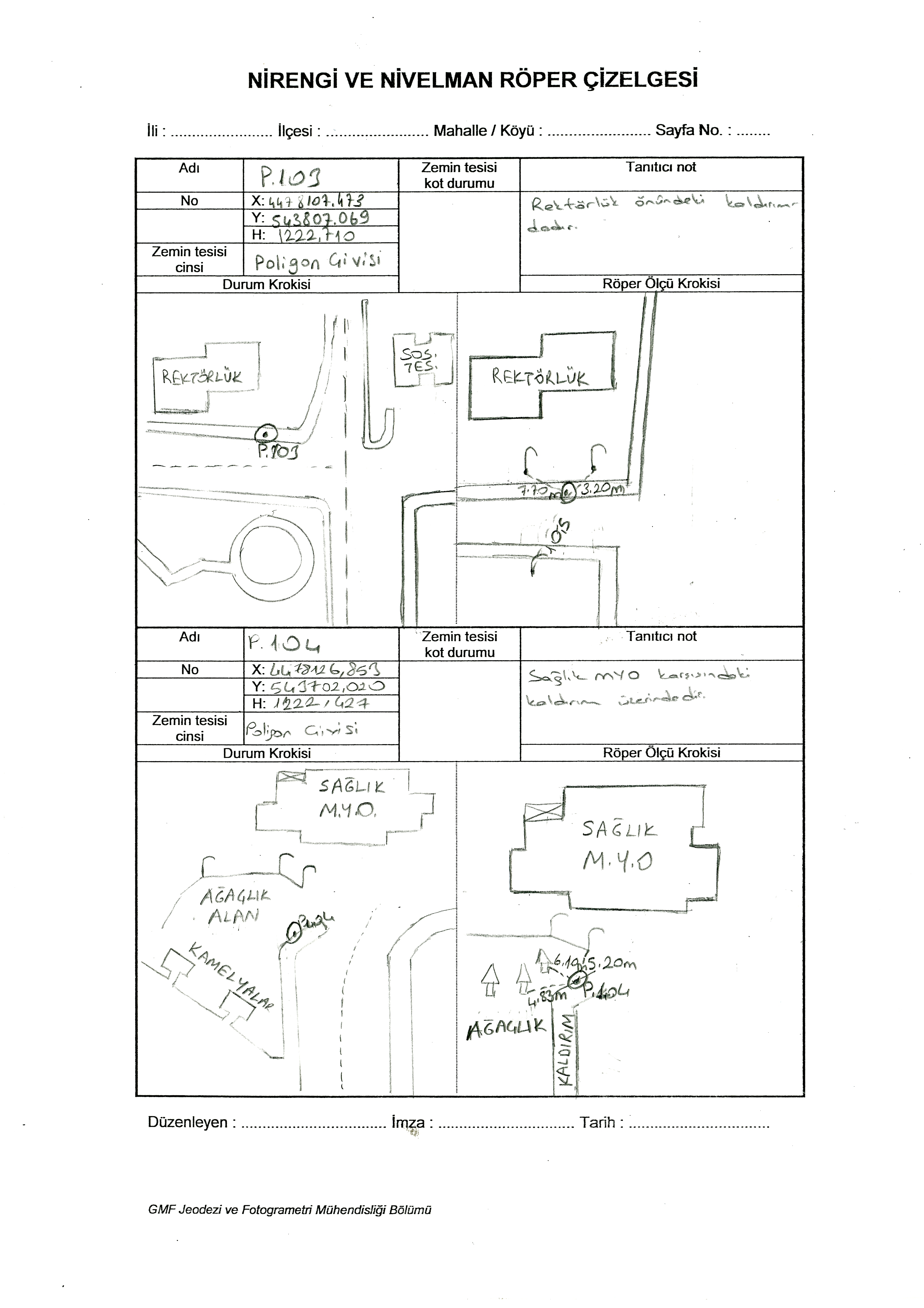
ITRF koordinat sisteminde P103 ve p104 koordinat ve röperleri
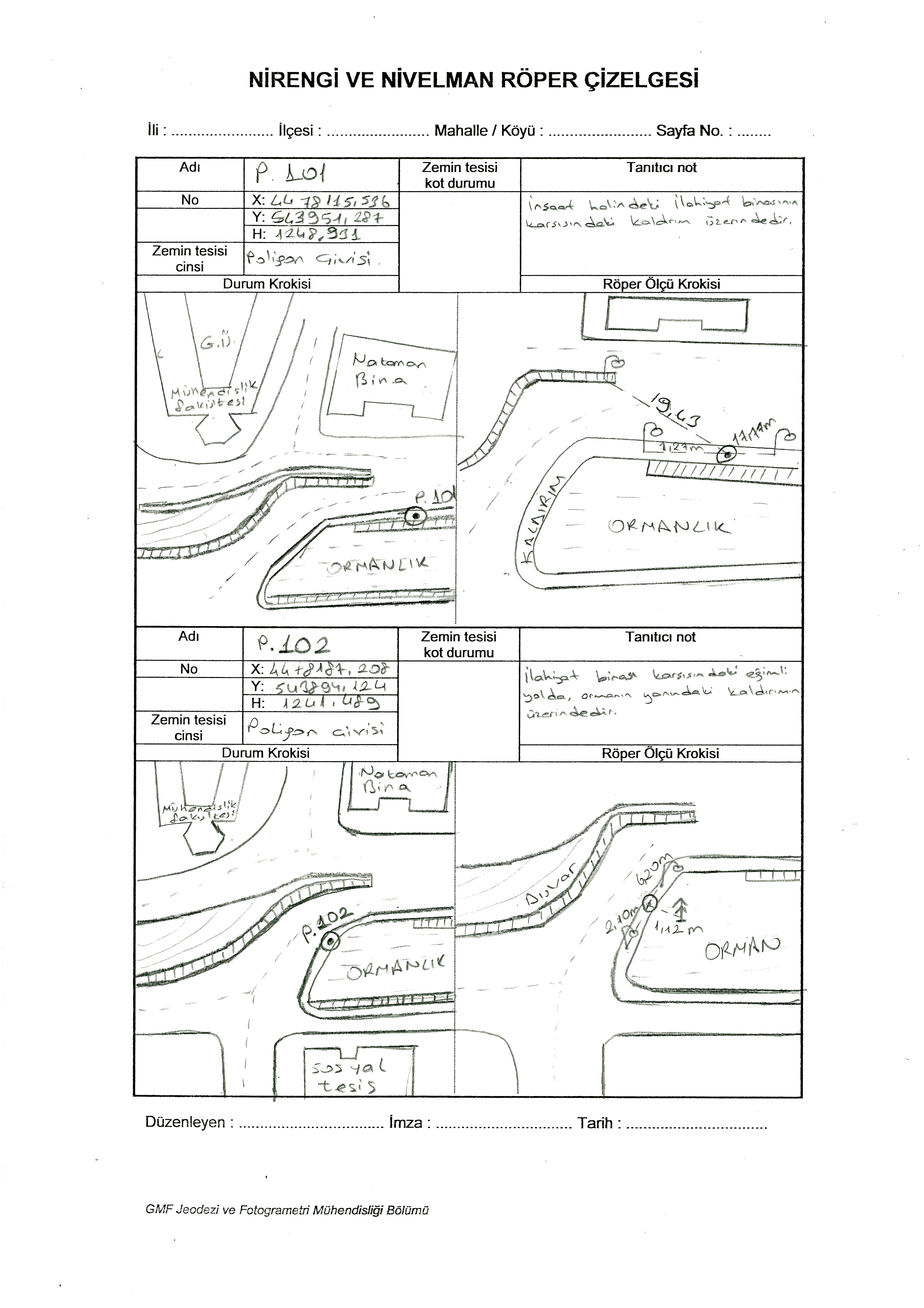
ITRF koordinat sisteminde P101-P102 koordinat ve röperleri
ITRF koordinat sisteminde P10 koordinat ve röperleri
ITRF koordinat sisteminde P8-P9 koordinat ve röperleri
ITRF koordinat sisteminde P6-P7 koordinat ve röperleri
ITRF koordinat sisteminde P3-P4 koordinat ve röperleri
ITRF koordinat sisteminde P5 koordinat ve röperleri
ED-50 koordinat sisteminde N1-N2 koordinat ve röper krokileri
Gümüşhane üniversitesi eski poligon ve nirengi koordinatları ve kanavası
ED-50 koordinat sisteminde Paratoner koordinatları
Copyright © 2017 Gümüşhane Üniversitesi